
Junglinster
Abrigo vous présente une propriété rare, où élégance, volumes et qualité de vie se rencontrent harmonieusement.
Nichée au c?ur de l'une des adresses les plus recherchées de Junglinster, dans un environnement résidentiel paisible et verdoyant, cette maison contemporaine construite en 2013 séduit dès les premiers instants par son architecture soignée et ses prestations de qualité.
Développant environ 330 m² de surface utile, elle offre des espaces généreux baignés de lumière, pensés pour un confort de vie optimal au quotidien.
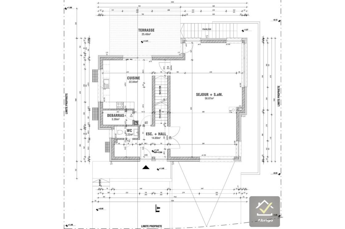
Le rez-de-chaussée s'ouvre sur un vaste espace de vie, véritable c?ur de la maison. Le séjour, sublimé par un poêle à bois, invite à la convivialité et se prolonge naturellement vers l'extérieur, où une élégante pergola crée un espace de vie supplémentaire, idéal pour profiter des beaux jours en toute intimité.
La cuisine, spacieuse et parfaitement intégrée, allie esthétisme et fonctionnalité, avec un accès direct vers l'extérieur et des espaces de rangement discrets.
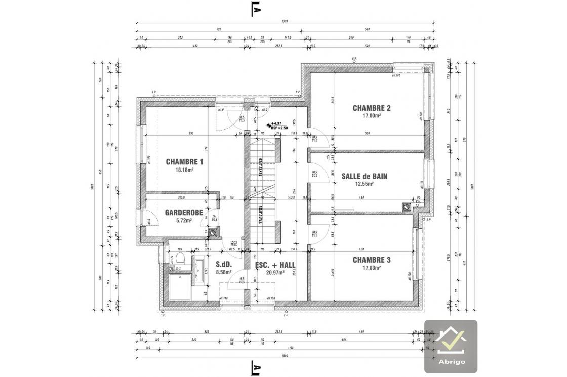
À l'étage, l'espace nuit propose une suite parentale raffinée avec dressing et salle de douche privative, complétée par deux belles chambres et une salle de bains élégante, équipée d'une baignoire, d'une douche et de doubles vasques.
Le dernier niveau dévoile un espace polyvalent, idéal pour un bureau, un espace détente ou une chambre supplémentaire, prolongé par un balcon offrant une vue dégagée sur les environs.
À l'extérieur, le jardin soigneusement aménagé constitue un véritable havre de paix, à l'abri des regards, où chaque espace a été pensé pour la détente et la convivialité.
Les prestations techniques confirment le standing du bien : chauffage performant au pellets, chauffage au sol, triple vitrage, volets électriques et installation récente de panneaux photovoltaïques, garantissant confort et efficacité énergétique (classe A / B).
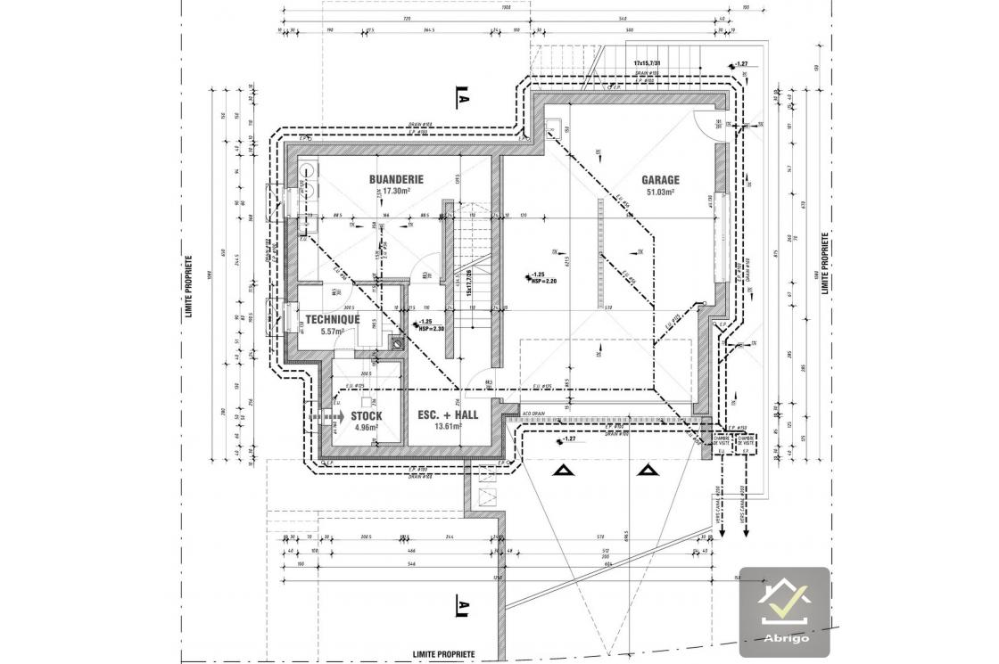
Un garage spacieux pour deux voitures, plusieurs emplacements extérieurs ainsi qu'une buanderie complètent ce bien aux multiples atouts.
Junglinster séduit par son équilibre parfait entre tranquillité et accessibilité. À proximité immédiate, vous trouverez écoles, crèches, commerces, infrastructures sportives, centre médical ainsi que le Lycée international. Les connexions rapides vers le Kirchberg et Luxembourg-ville renforcent encore l'attractivité de cette localisation.
Cette propriété s'adresse aux amateurs de biens alliant confort moderne, sérénité et qualité de vie, dans un cadre privilégié.
Pour plus de photos, visitez notre site et pour plus d'informations ou pour organiser une visite privée, veuillez nous contacter à info@abrigo.lu ou au 26 78 28 28.