
Wecker
--- MAGNIFIQUE PROJET D'APPARTEMENTS À WECKER ---
ABRIGO et ADA PRO vous proposent un magnifique projet de construction de résidences comprenant 3 appartements par maison, situé 8-12, an der Grousswiss à Wecker, dans une rue calme et sans issue.
Les biens se situent à 5 minutes à pied de la gare de Wecker (train direct jusqu'à la gare de Luxembourg en 30 minutes).
L'autoroute est à seulement 4 minutes et le Kirchberg à 15 minutes.
- Les travaux démarrent en mai 2026
- Les travaux sont entièrement financés et seront achevés endéans ± 20 mois
- Une garantie décennale ainsi qu'une assurance tous risques chantier seront établies auprès de LALUX (APROBAT), garantissant une sécurité optimale pour les acquéreurs
- Tous les travaux seront réalisés par des corps de métier luxembourgeois expérimentés et reconnus, avec un suivi assuré par APROBAT et un bureau d'études luxembourgeois
- Chaque appartement dispose, en partie privative, d'un jardin et/ou d'une terrasse, d'un ou plusieurs emplacements de parking ainsi que d'une cave privative
- Les parties communes comprennent une buanderie, un local vélos spacieux et un local poubelles
- Passeport énergétique : A / B / A
- Les plans, le CPE ainsi que le cahier des charges sont disponibles sur simple demande
- Les prix indiqués comprennent la TVA à 3 %, sous réserve d'acceptation par l'AED
- Les images présentées sont à titre illustratif et non contractuelles
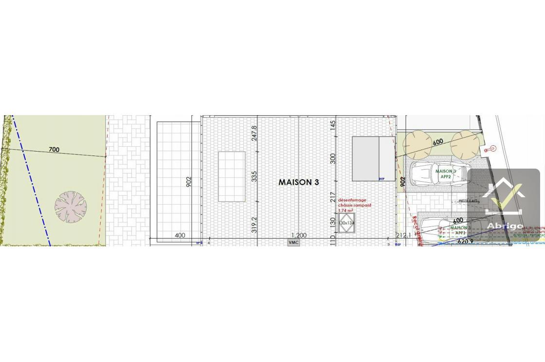
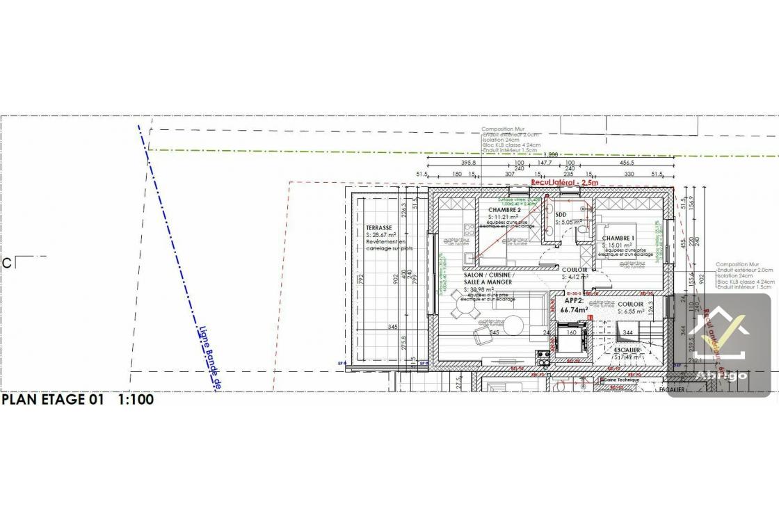
Maison 3 :
Appartement au 1er étage se compose comme suit :
- Surface utile : 69,18 m²
- Hall d'entrée avec accès aux espaces de vie
- Séjour et salle à manger lumineux avec cuisine ouverte
- 2 chambres à coucher (15,01m² et 11,21 m²)
- Salle de bains / salle de douche (selon aménagement sur plan, mais possibilité de modifier)
Espaces extérieurs et annexes :
- Terrasse : 25,77 m² - 1 emplacement de parking intérieur (12,50 m²) - 1 emplacement de parking extérieur (14,93 m²)
- Cave privative : 4,94 m²
Pour cet appartement, le promoteur vous offre la somme de 5.500 euros TTC pour équiper votre cuisine sur mesure auprès du spécialiste INTERNI à Gasperich
Il est possible d'adapter l'agencement intérieur de l'appartement (avant que le gros-?uvre soit achevé)
Grâce à son agencement moderne, ses espaces extérieurs généreux et sa situation dans un environnement calme et résidentiel, cet appartement constitue une opportunité idéale pour une résidence principale ou un investissement de qualité.
Pour plus d'information veuillez nous contacter par téléphone 26 78 28 28 ou par e-mail : info@abrigo.lu