
Hollenfels
Abrigo vous propose une nouvelle maison jumelée à Hollenfels en cours de construction.
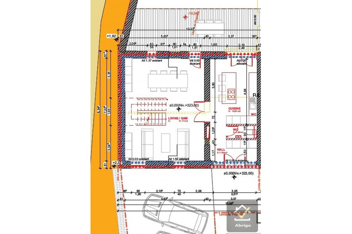
Elle se compose comme suit :
- Hall d'entrée
- WC séparé
- Grand living avec accès à une belle terrasse
- Cuisine donnant également accès à la terrasse
À l'étage :
- 4 chambres à coucher avec chaque une sa salle de douche
- Les combles peuvent être aménagés en espace polyvalent selon vos besoins.
À ce stade des travaux (gros oeuvre fermé), vous avez encore la possibilité de choisir vos finitions.
Disponibilité prévue pour fin 2026.
Prix TVA 3% inclus sous réserve d'accord par AED.
Pour plus d'informations, veuillez nous contacter :
info@abrigo.lu
26 78 28 28