
Kiischpelt
*** SOUS COMPROMIS ***
Abrigo vous propose une toute nouvelle maison, libre de quatre côtés, avec terrasse et jardin, située à Alscheid (commune de Kiischpelt au nord du Luxembourg), se composant comme suit:
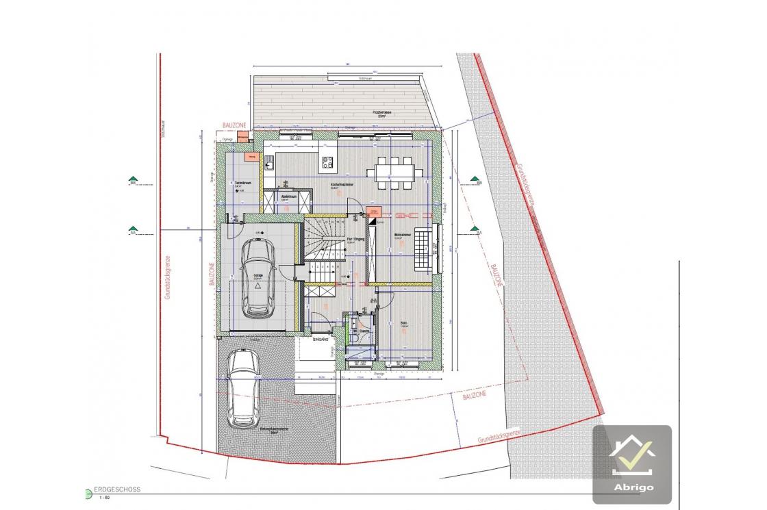
Rez-de-chaussée
- Hall d'entrée
- WC avec douche
- Bureau ou chambre
- Grand salon ouvert avec accès direct à une belle terrasse
- Cuisine équipée avec appareils de qualité Siemens
- Débarras
1er étage
- 3 chambres à coucher, dont une avec dressing
- Salle de douche spacieuse et lumineuse
- Débarras
- Accès au grenier
Maison moderne avec passeport énergétique A+, triple vitrage, chauffage au sol et système de ventilation contrôlée (VMC).
Surface énergétique : ±236 m².
Pompe à chaleur air/eau et chauffage au sol.
Belle terrasse d'environ 29 m²
La maison est située dans un quartier résidentiel récent et bénéficie d'une vue dégagée sur la nature.
Situation
Située dans le village d'Alscheid, dans la commune de Kiischpelt, la maison bénéficie d'un environnement calme et verdoyant au coeur de l'Oesling.
Les commerces, restaurants et services se trouvent à Wiltz (±10 minutes) et Clervaux (±15 minutes).
L'école fondamentale de la commune est située à Wilwerwiltz, à quelques minutes en voiture.
Libre à convenir.
Pour plus d'informations, veuillez nous contacter au 26 78 28 28 ou par e-mail : info@abrigo.lu