
 Hollenfels                        
 
                        
                            Abrigo vous propose une nouvelle maison jumelée à Hollenfels, actuellement en cours de construction.
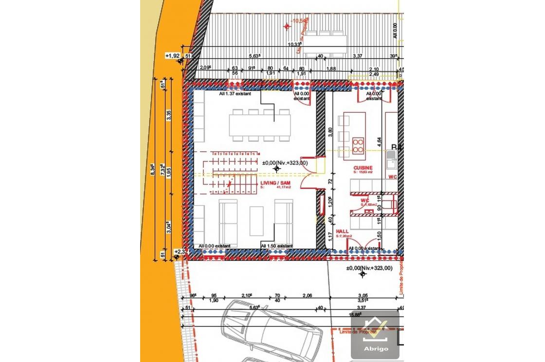
Elle se compose comme suit :
-	Hall d'entrée
-	WC séparé
-	Grand living avec accès à une belle terrasse
-	Cuisine donnant également accès à la terrasse
À l'étage :
-	Trois chambres à coucher
-	Deux salles de douche
-	Les combles peuvent être aménagés en chambre d'amis ou en espace polyvalent selon vos besoins.
À ce stade des travaux (couverture de la toiture), vous avez encore la possibilité de choisir vos finitions.
Disponibilité prévue pour fin 2026.
Prix TVA 3% inclus sous réserve d'accord par AED.
Pour plus d'informations, veuillez nous contacter :
info@abrigo.lu
26 78 28 28