
Junglinster
***LOUE***
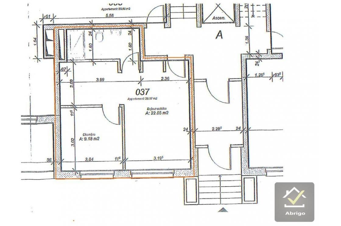
Abrigo vous propose la location d'un petit appartement meublé de 39m2, au centre de Junglinster, proche de la gare routière et de toutes commodités, se composant comme suit:
- séjour avec cuisine équipée neuve (22,65m2)
- chambre à coucher (9,18)
- salle des douches
- cave
- buanderie commune
- Emplacement extérieur
Conditions de location:
- CDI
- animaux non-acceptés
- caution: 2 loyers (2200.- euros)
- frais d'agence: 1100.- euros + TVA (1287.- euros)
Pour plus d'informations, veuillez nous contacter au 26 78 28 28 ou info@abrigo.lu