
Michelbouch
Abrigo vous propose une nouvelle construction d'une maison jumelée avec une haute finition de qualité et une surface habitable de 220 m2.
La construction est réalisée en bloc de terre cuite à isolation renforcée type « Thermoplan-Poroton S7.5 d'épaisseur brute de 42.5cm.
La maison sera livrée clés en main avec l'aménagement des alentours comme l'entrée à l'immeuble, terrasse, bordures, etc. et la mise en peinture intérieure.
Elle se compose comme suit:
Au Rez-de Chaussée:
- hall d'entrée
- grand living avec cuisine ouverte (61,24m2) et avec accès sur la terrasse et le jardin
- débarras
- WC séparé
- garage pour 2 voitures
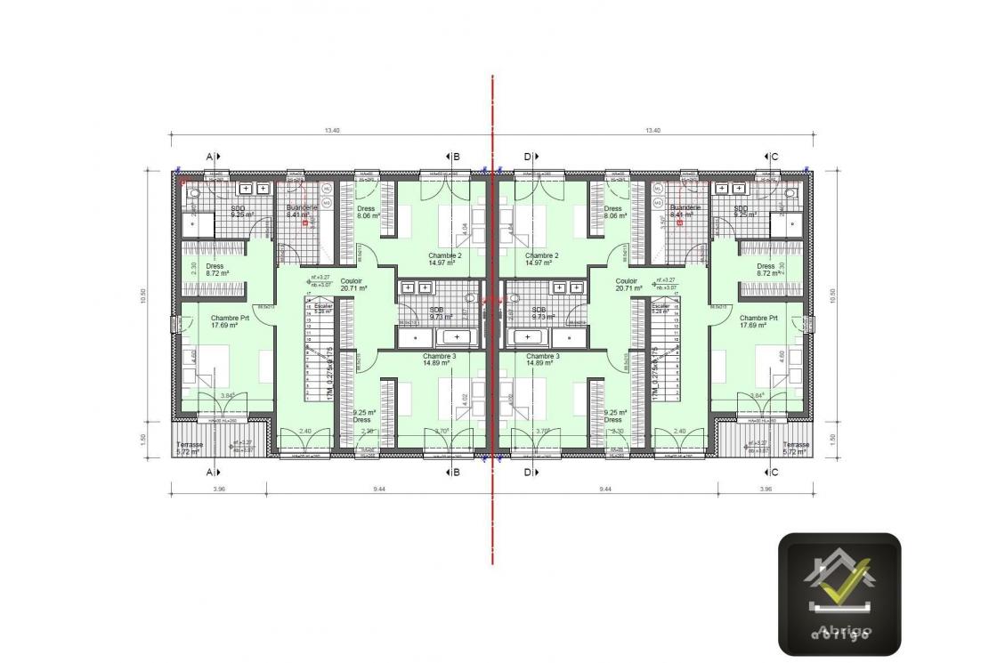
1er étage:
- chambre parentale (17,69m2) avec dressing, salle de douches privative et accès sur une terrasse (5,72m2)
- 2 chambres à coucher (15m2) avec dressing
- salle de bains
- buanderie
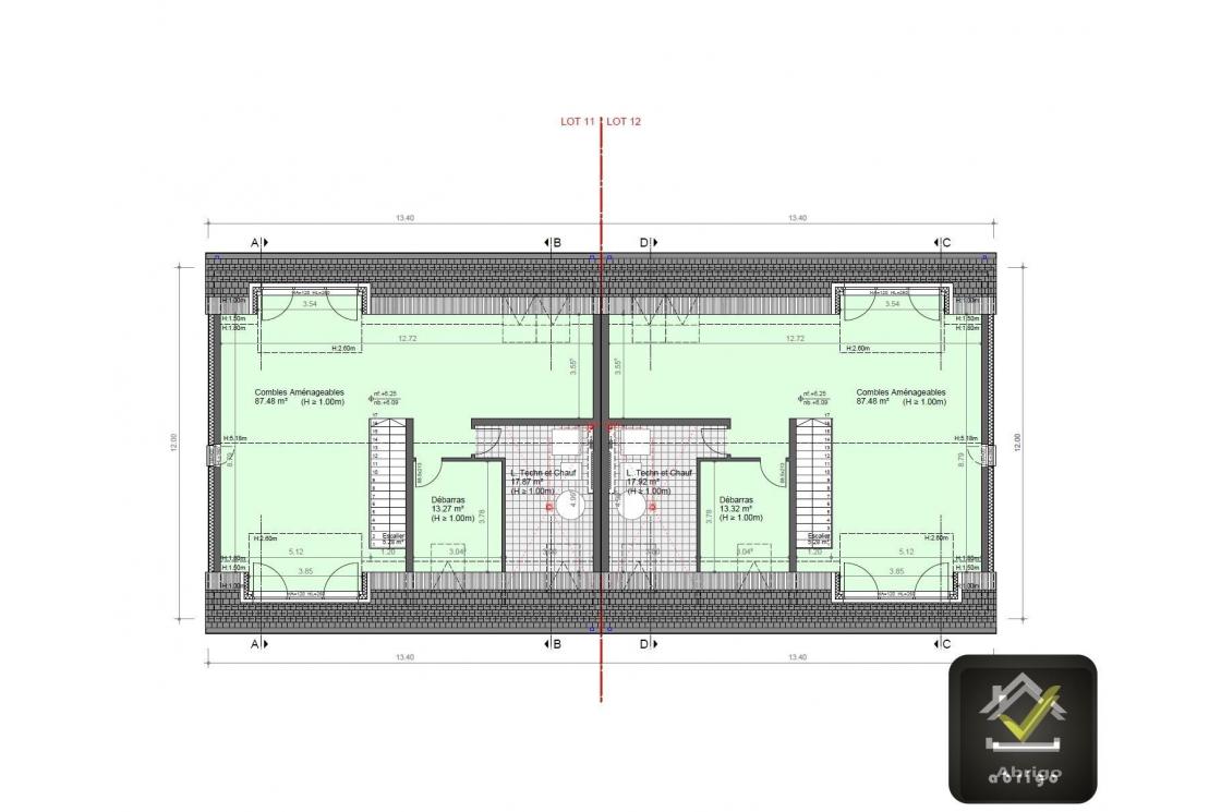
2ème étage:
comble aménageable de 100m2 avec local technique
Pour plus d'informations veuillez nous contacter au 26 78 28 28 ou via mail : info@abrigo.lu